Skip To Content

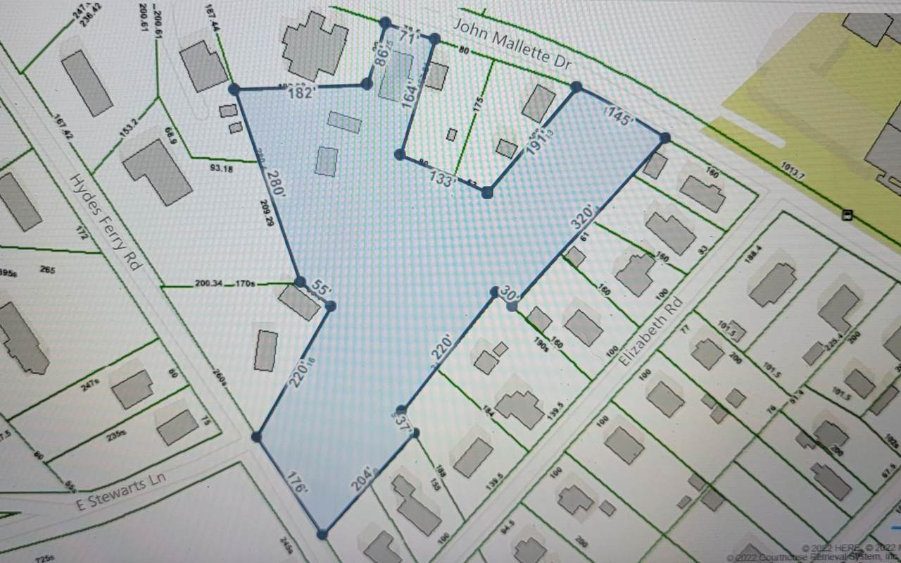
3709 John Mallette Dr

Nashville, TN 37218
  • $1,950,000
  • STATUS: Active
  • ON SITE: 227 Days
  • MLS #: RTC2898684
UPDATED: 62 min ago
$1,950,000
  • 0
    BEDS
  • 4.58
    ACRES
  • 0
    BATHS
  • 0
    1/2 BATHS
Neighborhood:
Type:
Vacant Land / Lots
County:

School Information

Elementary School:
Middle School:
High School:

Description

This property is gorgeous. Buyer may have the option to build additional houses on the lot. The existing stone built duplex is in need of major repair. It can be remodeled as a duplex, remodeled as a single residential home or with permission from Davidson County Codes one may be able to be tear it down to build several new houses.

Monthly Payment Calculator



Realtracs Solutions logoProperties marked with the IDX logo are provided courtesy of the RealTracs Internet Data Exchange Program. Some or all of the listings may not belong to the firm whose website is being visited (Kimberly Harris Homes | Century 21 Platinum Properties, 931-771-9070). IDX information © 2026 MTRMLS, Inc. Information is believed to be accurate but not guaranteed by the MLS or Kimberly Harris Homes | Century 21 Platinum Properties. IDX information is provided exclusively for consumers' personal, non-commercial use and may not be used for any purpose other than to identify prospective properties consumers may be interested in purchasing. Data last updated 2026-01-14T12:08:57.607.

Based on information submitted to the MLS GRID as of 2026-01-14T12:08:57.607. All data is obtained from various sources and may not have been verified by broker or MLS GRID. Supplied Open House Information is subject to change without notice. All information should be independently reviewed and verified for accuracy. Properties may or may not be listed by the office/agent presenting the information.
Click here for MLS GRID DMCA Notice
www.discovertnhomes.com/homes/164412326
Print Image

3709 John Mallette Dr Nashville, TN 37218

  • Price: $1,950,000
  • Status: Active
  • On Site: 227 Days
  • Updated: 62 min ago
  • MLS #: RTC2898684
0
Beds
0
Baths
0
½ Baths
4.58
Acres
Neighborhood:
None
County:
Davidson
Elementary School:
Cumberland Elementary
Middle School:
Haynes Middle
High School:
Whites Creek High
Property Description
This property is gorgeous. Buyer may have the option to build additional houses on the lot. The existing stone built duplex is in need of major repair. It can be remodeled as a duplex, remodeled as a single residential home or with permission from Davidson County Codes one may be able to be tear it down to build several new houses.
Exterior Features

Attached Garage YN No Lot Features Rolling Slope Road Frontage Type City Street Road Surface Type Asphalt Topography ROLLI View YN No Waterfront YN No

Interior Features

Cooling YN No Heating YN No

Property Features

Association YN No Inclusions LDBLG Lot Size Area 4.58 Pool Private YN No Sewer Public Sewer Special Listing Conditions Standard Tax Annual Amount 3075 Water Source Public Zoning Res

Realtracs Solutions logo Offered by Benchmark Realty, LLC: . Copyright 2026 RealTracs, Inc. Information Is Believed To Be Accurate But Not Guaranteed. Listings courtesy of Realtracs MLS as distributed by MLS GRID.


Realtracs Solutions logoProperties marked with the IDX logo are provided courtesy of the RealTracs Internet Data Exchange Program. Some or all of the listings may not belong to the firm whose website is being visited (Kimberly Harris Homes | Century 21 Platinum Properties, 931-771-9070). IDX information © 2026 MTRMLS, Inc. Information is believed to be accurate but not guaranteed by the MLS or Kimberly Harris Homes | Century 21 Platinum Properties. IDX information is provided exclusively for consumers' personal, non-commercial use and may not be used for any purpose other than to identify prospective properties consumers may be interested in purchasing. Data last updated 2026-01-14T12:08:57.607.

Based on information submitted to the MLS GRID as of 2026-01-14T12:08:57.607. All data is obtained from various sources and may not have been verified by broker or MLS GRID. Supplied Open House Information is subject to change without notice. All information should be independently reviewed and verified for accuracy. Properties may or may not be listed by the office/agent presenting the information.
Click here for MLS GRID DMCA Notice
 
https://bt-photos.global.ssl.fastly.net/nashville/1280_boomver_1_RTC2898684-1.jpg https://bt-photos.global.ssl.fastly.net/nashville/1280_boomver_1_RTC2898684-1.jpg
Logo
Kimberly Harris Homes | Century 21 Platinum Properties
2150 Wilma Rudolph Blvd, Suite 1
Clarksville TN, 37040